TOWN DESIGN
空が広がるゆとりの風景に、
片流れの屋根が美しく連なる街。

※掲載のパースは図面を基に描き起こしたもので、実際とは多少異なります。
TOWN DESIGN
空が広がるゆとりの風景に、片流れの屋根が美しく連なる街。

※掲載のパースは図面を基に描き起こしたもので、実際とは多少異なります。
空に映える片流れ屋根やアクセントとなるバルコニーの、質感豊かな外壁が織りなす多彩な意匠が、一邸ごとの個性を際立たせながらも、統一されたデザインによって調和し、洗練された美しい風景を創出します。

※掲載のパースは図面を基に描き起こしたもので、実際とは多少異なります。
空が映えるシンプルな片流れ屋根
シャープなラインが、空の広がりを美しく引き立てる片流れ屋根。シンプルでありながら存在感のあるフォルムが、街並に洗練された印象を与えます。

※掲載のパースは図面を基に描き起こしたもので、実際とは多少異なります。
美しいアクセントとなるバルコニー
建物から張り出すバルコニーが水平ラインを生み出し、その浮遊感と陰影が洗練された佇まいを演出。異なる外壁がアクセントとなります。
OUTER WALL
均一な梨地仕上げのシンプルな「ルビドフラットV」に、木目の美しい上質な樹種をラインナップした、樹種それぞれの色彩豊かな木目が美しい「バウンティウッド」がアクセントとなり、外観を華やかに彩ります。

OUTER WALL

均一な梨地仕上げのシンプルな「ルビドフラットV」に、木目の美しい上質な樹種をラインナップした、樹種それぞれの色彩豊かな木目が美しい「バウンティウッド」がアクセントとなり、外観を華やかに彩ります。
※号棟により採用状況・設置個所・形状・色が異なります。
※掲載の写真はイメージです。
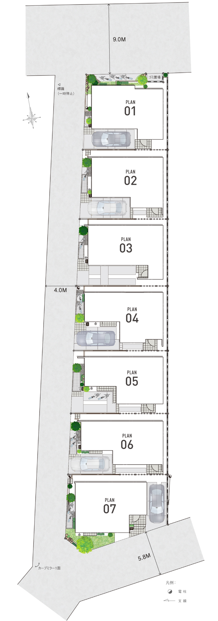
LANDSCAPE
アクティブな暮らしを楽しむ
7邸が織りなす住まいのカタチ。

※掲載のパースは図面を基に描き起こしたもので、実際とは多少異なります。
LANDSCAPE
アクティブな暮らしを楽しむ
7邸が織りなす住まいのカタチ。

※掲載のパースは図面を基に描き起こしたもので、実際とは多少異なります。
PARKING SPACE
暮らしを広げるカースペース・サイクルスペース
レジャーや毎日の通勤・通学に欠かせない駐車スペースに加え、近所の買い物やアクティブな暮らしを叶える自転車を置けるサイクルスペースも確保。日常も休日も、軽快に楽しめるフットワークを支えます。
![]() | ![]() |
EXTERIOR DESIGN
![]() 宅配ボックス付機能門柱 宅配ボックスとTVホンが一体となったスタイリッシュな機能門柱。日中不在がちなご家族も再配達の手間が省けます。 | ![]() 植栽計画 外観のアクセントとなる高木や足元を彩る緑を採用。自然素材のピンコロ石やロックガーデンと調和し豊かな表情を創出します。 |
![]() ピンコロ石敷 | ![]() ロックガーデン | ![]() 立水栓 |
LIGHTING & SAFETY
![]() 夜間に各住戸の外部灯を自動で点灯し続ける「灯かりのいえなみ協定(R)」を締結。街を美しく彩りながら、夜道を明るく照らして防犯性を高めます。 |

※号棟により採用状況・設置個所・形状・色が異なります。
※掲載の写真はイメージです。

PARKING SPACE


暮らしを広げる
カースペース・サイクルスペース
レジャーや毎日の通勤・通学に欠かせない駐車スペースに加え、近所の買い物やアクティブな暮らしを叶える自転車を置けるサイクルスペースも確保。日常も休日も、軽快に楽しめるフットワークを支えます。
EXTERIOR DESIGN

宅配ボックス付機能門柱
宅配ボックスとTVホンが一体となったスタイリッシュな機能門柱。日中不在がちなご家族も再配達の手間が省けます。

植栽計画
外観のアクセントとなる高木や足元を彩る緑を採用。自然素材のピンコロ石やロックガーデンと調和し豊かな表情を創出します。

ピンコロ石敷

ロックガーデン

立水栓
LIGHTING & SAFETY

夜間に各住戸の外部灯を自動で点灯し続ける「灯かりのいえなみ協定(R)」を締結。街を美しく彩りながら、夜道を明るく照らして防犯性を高めます。
※号棟により採用状況・設置個所・形状・色が異なります。
※掲載の写真はイメージです。
Copyright © POLUS GROUP all rights reserved.