TOWN DESIGN
自然の憩いと調和する、穏やかさと品格が織りなす印象的な街並み
重厚感のある石目調デザインが邸宅一つひとつの個性を際立たせながら、
調和をもたらす「色彩基準」を外壁に定めて、街としてのまとまりを形成し、景観美を創り出します。

※掲載の完成予想図(パース)は図面を基に描き起こしたもので、実際とは多少異なります。
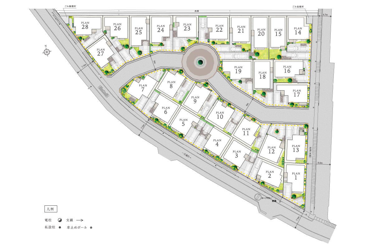
LANDSCAPE
緑が続く美しい情景と街の共有樹木
住民が憩い語り合う広場のある28邸の街
緑に彩られた道は明るく開放的な印象に。街の中心にある広場ではみんなで守り育てる共有樹木の下、住民同士の交流が育まれます。

EXTERIOR ITEM
暮らしを支え、街を彩る外構アイテム

※イメージ
2台分カースペース
2台分のカースペースを確保。セカンドカーや来客用のカースペースとしても最適です。※1台目を含めた車種制限及び入替の手順が必要となる場合がございます。

※街並完成予想図
宅配ボックス付機能門柱
宅配ボックス・ポスト・TV ホンをまとめてシンプルなエントランスに。留守の間も荷物が受け取れる、宅配ボックス付の門柱です。※号棟によりデザイン・色が異なります。

※街並完成予想図
インターロッキング
転回広場・一部土間スペースに透水性のインターロッキングブロックを採用。透水機能を持たせることにより、雨水が地中に浸透。水たまりができにくく、歩行が快適になります。
※掲載の完成予想図(パース)は図面を基に描き起こしたもので、実際とは多少異なります。
※画像はイメージです。
GREEN DESIGN
街に緑の潤いと四季折々の景色を演出する植栽計画
季節によって花や紅葉が楽しめる、住民が育てる街の緑「シンボルツリー」をはじめとした植栽を採用。
木と共に成長する街となり、爽やかな風景の変化を楽しむことができます。

SYMBOL TREE
シンボルツリー
シンボルツリーがグリーンのアクセントを添え、緑豊かな街並みを演出しています。年月と共に家族が成長し、家も味わいを増していく中で、木々も一緒に成長する楽しみがあります。

SEASONAL TREE
四季折々の植栽
街並みに潤いと日々の暮らしに癒やしを与えてくれる植栽を配しました。自然の息吹や季節の移ろいを感じられ、心豊かな暮らしが叶います。

FRUIT BEARING TREE
収穫して食べられる「実のなる木」
各邸宅に収穫の楽しさもある「実のなる木」を採用。食育に役立てられるほか、日々の手入れで家族の絆が深まります。
※植栽の種類は号棟により採用が異なります。
※画像はイメージです。

※画像はイメージです。
TOWN SYMBOL
街のシンボルとなる「共有樹木」常緑ヤマボウシを植樹
光沢のある緑の葉が美しく、春から初夏には白い花、秋には赤い実をつけるなど季節ごとにちがった表情を見せてくれるヤマボウシを共有樹木に選びました。花言葉である「友情」にふさわしく、この木を通して住民のふれあいが深まっていくことでしょう。
GREEN BELT
グリーンベルト
街区内の道路面、周辺の歩道面は沿道より50cmをグリーンベルトと定め、植栽計画を施しています。街全体に緑の彩りが連続する豊かな街並み景観を育む工夫です。

Copyright © POLUS GROUP all rights reserved.